Kantoor van de toekomst

Vief Kwartier is de ideale vestigingsplek voor bedrijven en ondernemers die de lat hoog hebben liggen op kwaliteit een duurzaamheid. Naast hoogwaardige kantoorruimtes is er rekening gehouden met alle eisen die de nieuwetijds kenniswerkers aan een werkomgeving stellen, of je nu komt als corporate, ondernemer, start-up of ZZP’er, Space-as-a-Service is de norm.

Unieke voorraad

Vief Kwartier biedt een unieke voorraad met aanvullende producten zoals vergaderruimtes, eventspace, overflow desks en services zoals F&B, parking, receptie en integraal facilitair management. Met deze aanpak kunnen we een statisch traditioneel kantoor transformeren naar een platform waar verschillende functies, contracten en huurders tegelijkertijd kunnen worden aangesloten Hiermee hoef je als kantoorgebruiker niet te voorzien in allemaal eigen ruimte en voorzieningen en kan je met minder meters uit de voeten.

Van volledig privé, tot volledig flexibel en volledig aanpasbare overloopruimtes voor piekperioden van kantoren. Hiermee biedt Vief Kwartier volledige flexibiliteit voor haar gebruikers en de mogelijkheid tot het gebruik van minder vaste meters waardoor de CO2 footprint wordt verlaagd.

De hybride lagen die een veelzijdig kantoorgebruik mogelijk maken. Verdeeld in verschillende zones die tegemoetkomen aan sociale en functionele behoeften. Ze omvatten diverse ruimten zoals restaurants, cafés, entertainmentruimte en welzijnsfaciliteiten. De flexibele kantoren zijn gesitueerd rondom een lifted courtyard, een serene buitenruimte voor een fijn werkklimaat.

Entree’s voor kantoor en hotel
Binnentuin
Café & Restaurant
Vergaderruimtes
Flexibele kantoren
Coworking desks
Atrium/Auditorium voor presentaties en events
Retail
Supermarkt
Fietskelder
  • Circa 25.000 m2 BVO kantoor

  • Van casco vloeren tot full-service kantoorunits

  • Conventionele verhuur en flexibele contracten

  • BREAAM Excellent en ontworpen op basis van de principes van WELL GOLD

  • Altijd zicht op groen en veel vloeren met eigen buitenruimte

  • Focus op hospitality, services en flexibiliteit

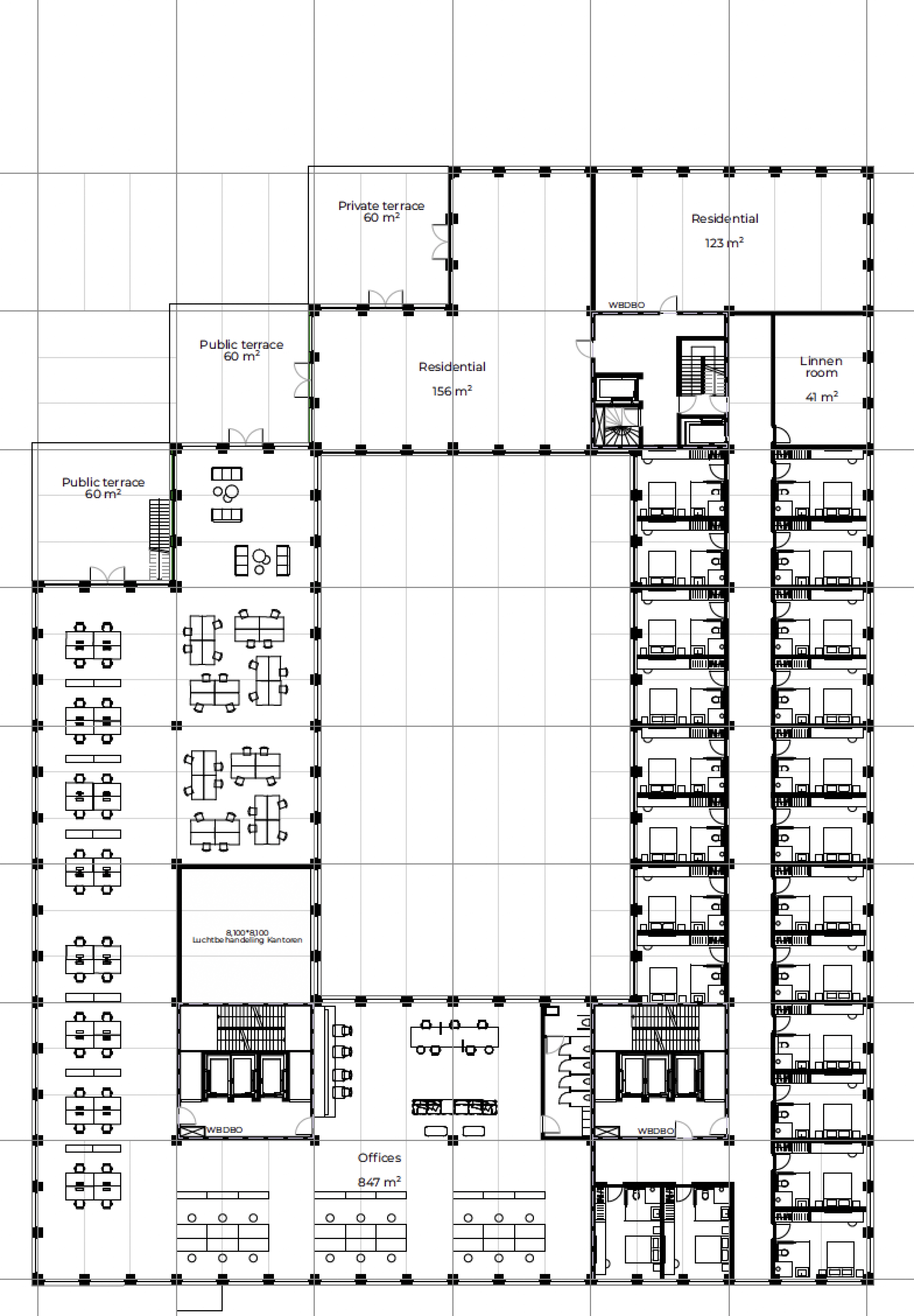
Indelingsvoorbeeld 2e verdieping

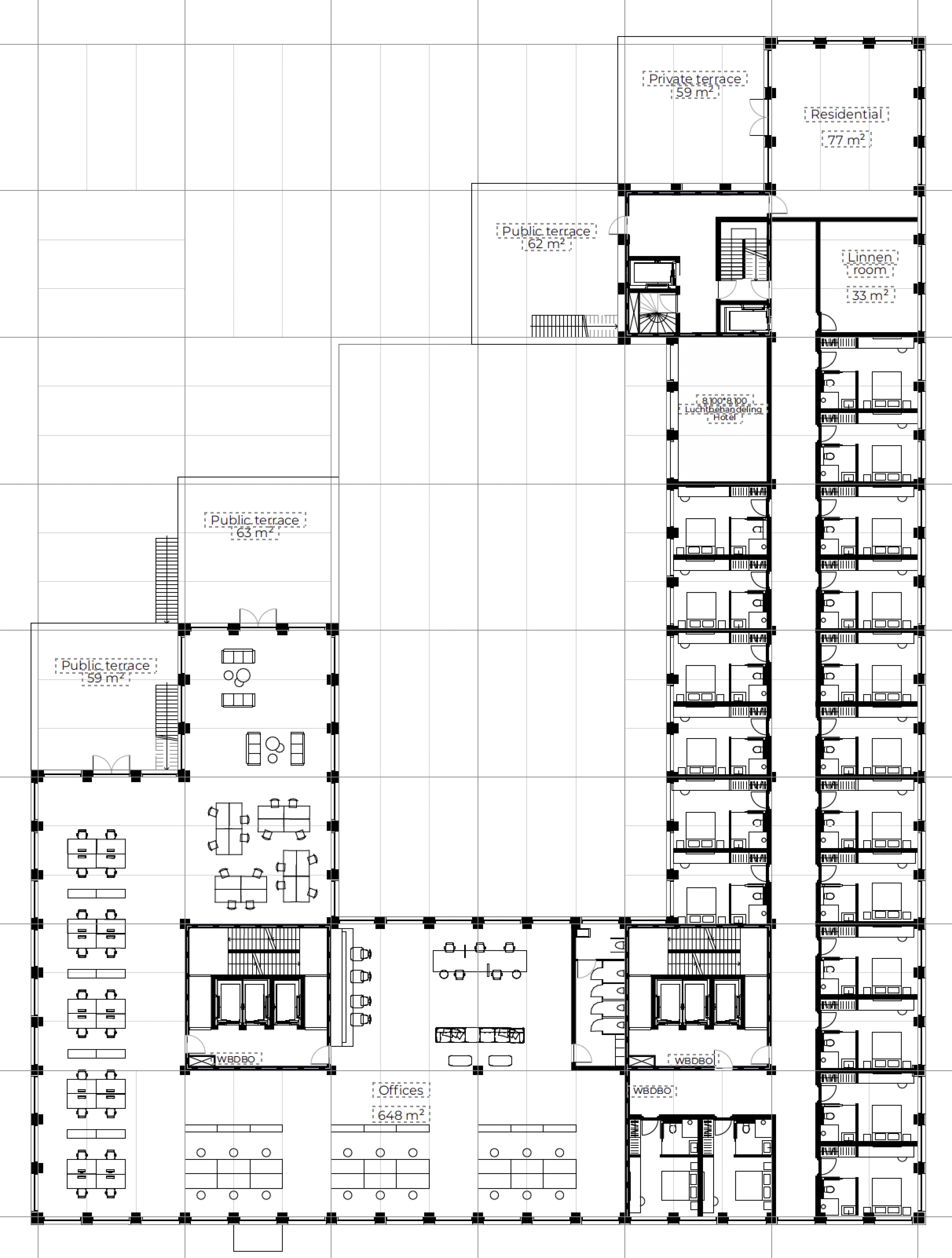
Indelingsvoorbeeld 6e verdieping

Dit is een ontwikkeling van ABC vastgoed